Баня-квадро-овалбочка «4х3»

Bochky
557851,00
р.
Описание
Характеристики
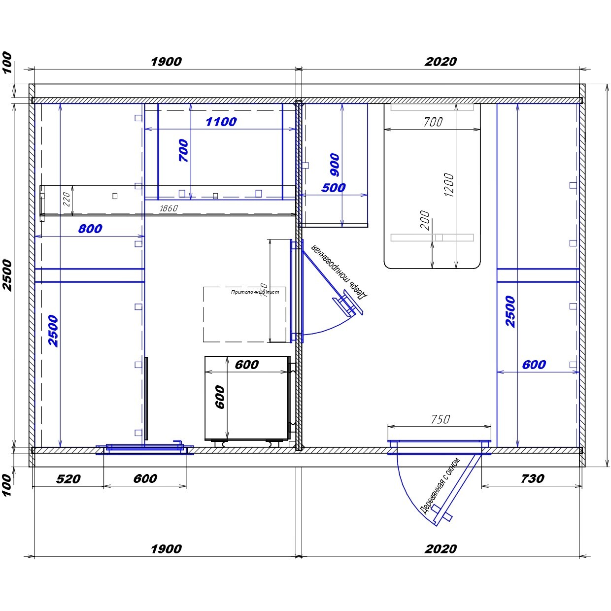
Чертёж

Описание

Приобретая баню-квадро-овалбочку «4х3», вы получаете комфортное, уютное размещение дружной компании

Каркас
  • Еловый или кедровый профиль толщиной 42х92 мм, влажностью 10%
  • Основание под баню (деревянные ножки)
  • Обручи из нержавеющей стали с замками
  • Внешняя обработка антисептиком в один слой (при поставке изделия в готовом виде или со сборкой на участке)

Кровля
  • Крыша из гибкой черепицы Döcke РІЕ. Цвет зеленый

Печной узел
  • Дровяная печь Grill'D Bochky
  • Пожаробезопасное многослойное основание-сэндвич под печь из нержавеющей стали, минерита и базальтового картона
  • Защита от нагрева из минерита
  • Камни для печи (в подарок)

Дымоход
  • Дымоход в сборе
  • Проходной узел под дымоход из нержавеющей стали, термоизоляции, резинового уплотнителя с хомутом

Двери
  • Входная дверь деревянная 1640×605 мм с окном
  • Стеклянная дверь в парилку

Парное отделение
  • Два собранных полка из осины
  • Трапик на пол из ели
  • Окно (стеклопакет 60см*60см)
  • Светильник банный IP54
Комната отдыха/раздевалка
  • Два собранных полка из липы или осины
  • Трапик на пол из ели
  • Стол
  • Светильник банный IP54
  • Розетка
  • Выключатель

Характеристики

Количество помещений: 2

Длина козырька/крыльца: 200 мм

Общая длина (наружный размер): 2986 мм

Высота: 2370 мм

Ширина: 4103 мм

Вес: 1789 кг

Выставка: Одинцово

Размер бани: 4х3

Чертёж

С этим покупают